площадью 177,00 м2, по цене 12441000 по адресу Прокопия Галушина - 14

Цена 12 441 000 р.
Адрес Прокопия Галушина, 14
Площадь помещения 177 м2
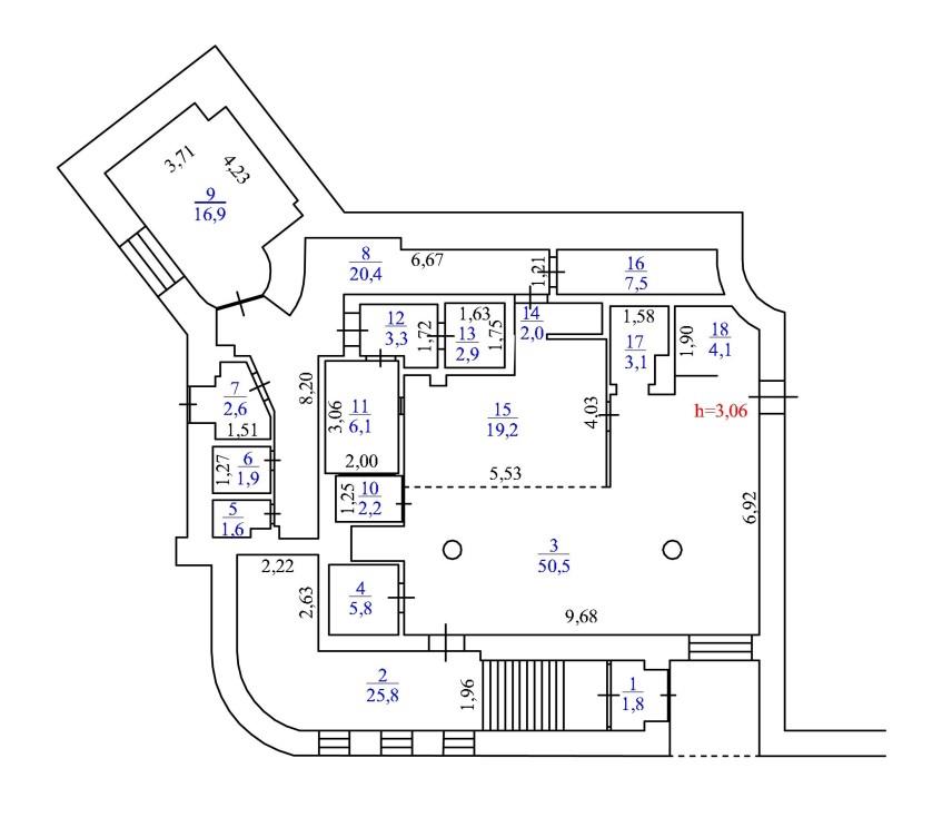
Сбер А предлагает к реализации нежилое помещение общей площадью 177,7 кв.м. и 143/296 доли в праве общедолевой собственности на земельный участок площадью 998 кв. м, расположенных по адресу: Архангельская область, город Архангельск, ул. Прокопия Галушина, 14 Продажа посредством проведения торгов на электронной площадке Сбербанк-АСТ. Номер процедуры: SBR065-2508150001 Ссылка на торги: https://utp.sberbank-ast.ru/Property/NBT/PurchaseV iew/43/0/0/3333639 Собственник: Северо-Западный банк ПАО Сбербанк О лоте: Объект 1: Нежилое помещение общей площадью: 160,8 кв.м. Этаж: 1/1 Кадастровый номер: 29:22:060411:769 Объект 2: Нежилое помещение общей площадью: 16,9 кв.м. Этаж: 1/1 Кадастровый номер: 29:22:060411:770 Объект 3: 43/296 доли в праве общедолевой собственности на земельный участок площадью 998 (+/-11) кв. м Кадастровый номер: 29:22:060411:34 Категория земель: земли населенных пунктов ВРИ: для эксплуатации административного здания Права собственности: собственность Обратная аренда: нет Особые условия: Договор купли-продажи будет заключен Продавцом с отлагательными условиями по приему-передаче помещений Покупателю в срок не позднее 01.05.2026 г. Есть ограничения на объект. Дополнительная информация, документы и условия реализации указаны на площадке в разделе «Документы». По всем вопросам, связанным с лотом, обращайтесь в рабочее время по телефону с 09: 00 до 18: 00 по МСК.
Объявление № 23171352
Дата подачи:
22 августа 2025 г. 7:55
Дата обновления:
22 августа 2025 г. 0:00
Просмотров 21 Хотите продать быстрее?

Продавец
Яна СБЕРБАНК АСТ
Показать номер телефона
Пожаловаться
Комментарии:
Добавить